飯能市岩沢第3期 全1棟 新築戸建 リーブルガーデン

2,990万円

埼玉県飯能市大字岩沢

西武池袋線「元加治」駅徒歩17分

八高線「東飯能」駅徒歩21分

西武池袋線「飯能」駅徒歩26分

価格
2,990万円
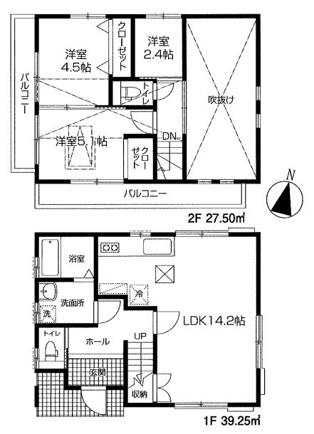
間取り/建物面積
3LDK/91.91㎡
所在地
埼玉県飯能市大字岩沢
築年
2026年6月(予定)
駐車
有(2台)
交通

西武池袋線元加治」駅 徒歩17分

八高線東飯能」駅 徒歩21分

西武池袋線飯能」駅 徒歩26分

飯能市岩沢第3期 全1棟 新築戸建 リーブルガーデンの基本情報

物件名
飯能市岩沢第3期 全1棟 新築戸建 リーブルガーデン
価格
2,990万円
建物面積
91.91㎡
土地面積
35.01坪(115.74㎡)
築年月
2026年6月(予定)
総戸数
1戸
所在地
埼玉県飯能市大字岩沢
交通

西武池袋線元加治」駅 徒歩17分

八高線東飯能」駅 徒歩21分

西武池袋線飯能」駅 徒歩26分

飯能市岩沢第3期 全1棟 新築戸建 リーブルガーデンの詳細情報

設備条件
  • 閑静な住宅地
  • 建設住宅性能評価書付
  • 駐輪場
  • 駐車2台可
設備(その他)
    -
駐車場/月額
有(2台)/0円
土地権利
所有権
国土法届出
不要
用途地域
第一種低層住居専用
取引態様
仲介
引渡し
2026年6月中旬

飯能市岩沢第3期 全1棟 新築戸建 リーブルガーデンで募集中の物件

  1. 1号棟

    27.80坪 (91.91㎡)

    2,990万円(107.55万円/坪)

周辺施設

  • サイゼリヤ 飯能店の画像

    ファミリーレストラン

    サイゼリヤ 飯能店

    559m(7分)

  • 業務スーパー 飯能店の画像

    スーパー

    業務スーパー 飯能店

    562m(8分)

  • ファミリーマート 飯能岩沢店の画像

    コンビニエンスストア

    ファミリーマート 飯能岩沢店

    653m(9分)

  • 水押公園の画像

    公園

    水押公園

    741m(10分)

  • ミニコープ緑町店の画像

    スーパー

    ミニコープ緑町店

    895m(12分)

  • ジェーソン 飯能緑町店の画像

    ディスカウントショップ

    ジェーソン 飯能緑町店

    961m(13分)

  • 認定こども園さゆり幼稚園の画像

    幼稚園

    認定こども園さゆり幼稚園

    981m(13分)

  • 加治幼稚園の画像

    幼稚園

    加治幼稚園

    1017m(13分)

  • 大山クリニックの画像

    総合病院

    大山クリニック

    1027m(13分)

  • ファミリーマート 飯能加治小学校前店の画像

    コンビニエンスストア

    ファミリーマート 飯能加治小学校前店

    1074m(14分)

  • ビッグ・エー飯能緑店の画像

    スーパー

    ビッグ・エー飯能緑店

    1082m(14分)

  • 飯能市立加治東保育所の画像

    保育園

    飯能市立加治東保育所

    1117m(14分)

  • ローソン 飯能川寺店の画像

    コンビニエンスストア

    ローソン 飯能川寺店

    1136m(15分)

  • 橋場公園の画像

    公園

    橋場公園

    1142m(15分)

  • 飯能市立加治小学校の画像

    小学校

    飯能市立加治小学校

    1158m(15分)

  • 飯能市立加治保育所の画像

    保育園

    飯能市立加治保育所

    1208m(16分)

  • 元加治幼稚園の画像

    幼稚園

    元加治幼稚園

    1225m(16分)

  • 柿堂公園の画像

    公園

    柿堂公園

    1247m(16分)

  • 飯能市立加治中学校の画像

    中学校

    飯能市立加治中学校

    1493m(19分)

  • 飯能市立浅間保育所の画像

    保育園

    飯能市立浅間保育所

    1666m(21分)

近隣の物件

  1. 飯能市大字川寺

    4LDK (112.20㎡)

    3,799万円

  2. 飯能市大字飯能

    3SLDK (98.54㎡)

    3,280万円

  3. 飯能市大字矢颪

    2SLDK (96.05㎡)

    4,580万円

  4. 飯能市大字青木

    3LDK (78.42㎡)

    1,349万円

よく見られている物件

  1. 狭山市大字水野

    3K (60.44㎡)

    780万円

  2. 狭山市大字下広瀬

    3LDK (82.80㎡)

    1,329万円

  3. 狭山市大字北入曽

    4LDK (107.00㎡)

    3,299万円

  4. 川越市今成1丁目

    2LDK+S(納戸) (66.75㎡)

    1,400万円

飯能市岩沢第3期 全1棟 新築戸建 リーブルガーデン

お気軽にお問い合わせください

無料お問い合わせ

株式会社ソライエ

04-2997-8555

10:00~19:00

(休:水曜日)